Island Wellness
Client: Dr. Tom & Dr. Cara Le Lievre
Location: St. Helier, Jersey, United Kingdom
Project Type: New Practice Build-Out / Tenant Fit-Out
Size: 1,535 Net SF
Year: 2025
Practice Type: Family Chiropractic, Prenatal Care, Functional Neurology, Corrective Care, Posture Exercises, Decompression, Neuro-Based Rehab, Shockwave, Massage, Laser, Hyperbaric Therapy
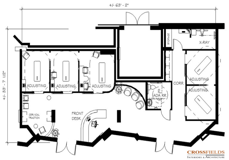
Project Overview
Island Wellness is a family chiropractic and integrated wellness practice located in St. Helier, Jersey, United Kingdom. CrossFields designed a new healthcare space to support integrated services, improve patient flow, and position the practice for long-term growth.
BUSINESS GOALS & CHALLENGE
Drs. Tom and Cara Le Lievre partnered with CrossFields before securing a location to first determine how much space their practice truly required. After one site fell through, they identified a second opportunity made up of three adjoining retail units. They knew at least two spaces would be needed but were unsure which combination would best support their services, patient flow, and long-term vision.
The challenge extended beyond layout design — it required strategic space evaluation, ensuring the selected units could:
- Support a corrective-care model with integrated rehab
- Balance energetic chiropractic areas with quieter therapy zones
- Provide a welcoming, family-oriented experience
- Allow for future expansion without major rework
Architecturally, the space included expansive storefront glazing and interior concrete columns. These elements needed to be incorporated into an environment envisioned as light, airy, organic, and island-inspired, rather than clinical or industrial.
SOLUTION
The final design delivers a compact yet highly functional healthcare environment where flow, visibility, and atmosphere work together. The clinic supports high-energy chiropractic care, integrated rehabilitation, and restorative therapies within a cohesive, calming brand experience.
By combining strategic unit selection, flexible planning, and nature-inspired design, Island Wellness now operates in a space that feels open, welcoming, and adaptable — built not only for today’s needs, but for future growth.
Key Design Goals
- Create a strong and welcoming first impression that reflects the practice’s family-oriented, island-inspired brand
- Improve operational efficiency and patient flow across chiropractic, rehabilitation, and restorative therapy services
- Balance energetic treatment areas with quieter therapy zones to support a better patient experience
- Allow for future expansion without requiring major redesign or disruption
Design Highlights
- Evaluated multiple adjoining retail units to identify the combination that best supported current services and future growth
- Organized the plan to separate higher-energy chiropractic and rehab functions from quieter restorative therapy areas
- Used flexible space planning to maximize function and flow within a compact footprint
- Leveraged expansive storefront glazing to reinforce openness, visibility, and a light-filled arrival experience
- Integrated interior concrete columns into the layout to preserve usable space and maintain circulation
- Applied a light, airy, organic design direction that supports a calming, non-clinical patient experience
Project Outcome
Island Wellness now operates in a space that supports a stronger patient experience, smoother daily flow, and a broader range of integrated services within one cohesive environment. The result is a practice that feels welcoming, efficient, and aligned with its brand while supporting long-term practice growth.
SERVICES
Determine Space & Vision Requirements, Space Planning Schematic Design, Finishes and Furnishing Selections.
CrossFields specializes in designing healthcare practices that improve patient experience, streamline operations, and support long-term practice growth.
Testimonial
“The planning process gave us clarity and confidence before making major real estate and build-out decisions.”
— Dr. Tom & Dr. Cara Le Lievre, Island Wellness
CHECK OUT THEIR WEBSITE:
Island Wellness
TESTIMONIALS
See What Our Clients Have Said
- All
- Chiropractic
- Integrative
- Neurology
- Rehab & PT
- wellness
Atlanta Family Dentistry
The Wellness Room
Island Wellness
Harbour Medical Centers
Spa Matrix
Wolter Chiropractic & Wellness
Family Chiropractic Center for Wellness
Hayes Chiropractic
Thrive Integrative Health
Cumming Family Chiropractic
Trusted Care Holistic Wellness
Lakeside Spine and Wellness
Chiropractic Lifestyle Studio
West University Wellness
Brain + Spine + Pain Institute Of Lake Nona
Active Chiropractic
Markson Chiropractic & Wellness
Aventura Wellness & Rehab Center
Lake Nona Chiropractic + Functional Health & Weight Loss
Valley Optimal Spine
Bell Wellness
Balance Wellspace – Denver
Balance Atlanta Family Chiropractic
The Neurologic Wellness Institute – Chicago
Arise Family Chiropractic
Corrective Chiropractic Woodstock
Georgia Chiropractic Neurology Center
Midtown Family Wellness
Valdosta Chiropractic
Bellevue Pain Institute
Atlanta Spine & Wellness
Bridge Chiropractic
Corrective Chiropractic Decatur
New Millennium Medical
SpineCare
Fisher Family Chiropractic
Malina Chiropractic & Wellness
Williamson County Chiropractic
LaCombe Chiropractic
Integral Health Studio
Chiropractic Community Outreach Center – Life University
Corrective Chiropractic
Wyoming Valley Spine & Nerve
Carrick Brain Center
Williams Library & Life Enrollment